Promoció Cases Obra Nova Zona del Castell, Torelló

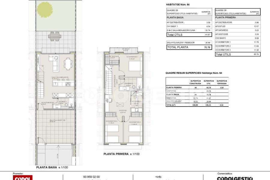
Propera promoció de cases d'obra nova a ubicada en una zona tranquil·la i molt ben connectada. Cada habitatge es distribueix en una planta baixa on trobem una sala polivalent (garatge), un bany complet amb dutxa, el menjador-sala d'estar i la cuina amb sortida directa a un bonic jardí, i una planta primera on hi ha ubicades les tres habitacions dobles (una d'elles amb vestidor), una cambra de rentar, un bany complet i una zona per un estudi. Tots els acabats són de màxima qualitat i el disseny modern i elegant. Tots els seus espais són lluminosos i té unes vistes privilegiades. La voleu visitar?
Construcció i acabats de qualitat
Eficiència energètica A
Optimització de la llum natural i espais amplis

PROMOCIÓ BONAVENTURA CUTRINA

Veure més
Superfície
172m2
A partir de
395.000€

PROMOCIÓ BONAVENTURA CUTRINA

Veure més
Superfície
168m2
A partir de
370.000€