Promoció residencial puigsacalm
Carrer Puigsacalm - Torelló | T02507- HAB. 3
- WC 2
- M2 199
HABITATGES MODERNS I FUNCIONALS. Cases d'obra nova situades a la zona residencial del barri de la Joanot Martorell. A prop del centre i ben comunicada. Assolellades i que reuneixen el millor de la comoditat moderna.
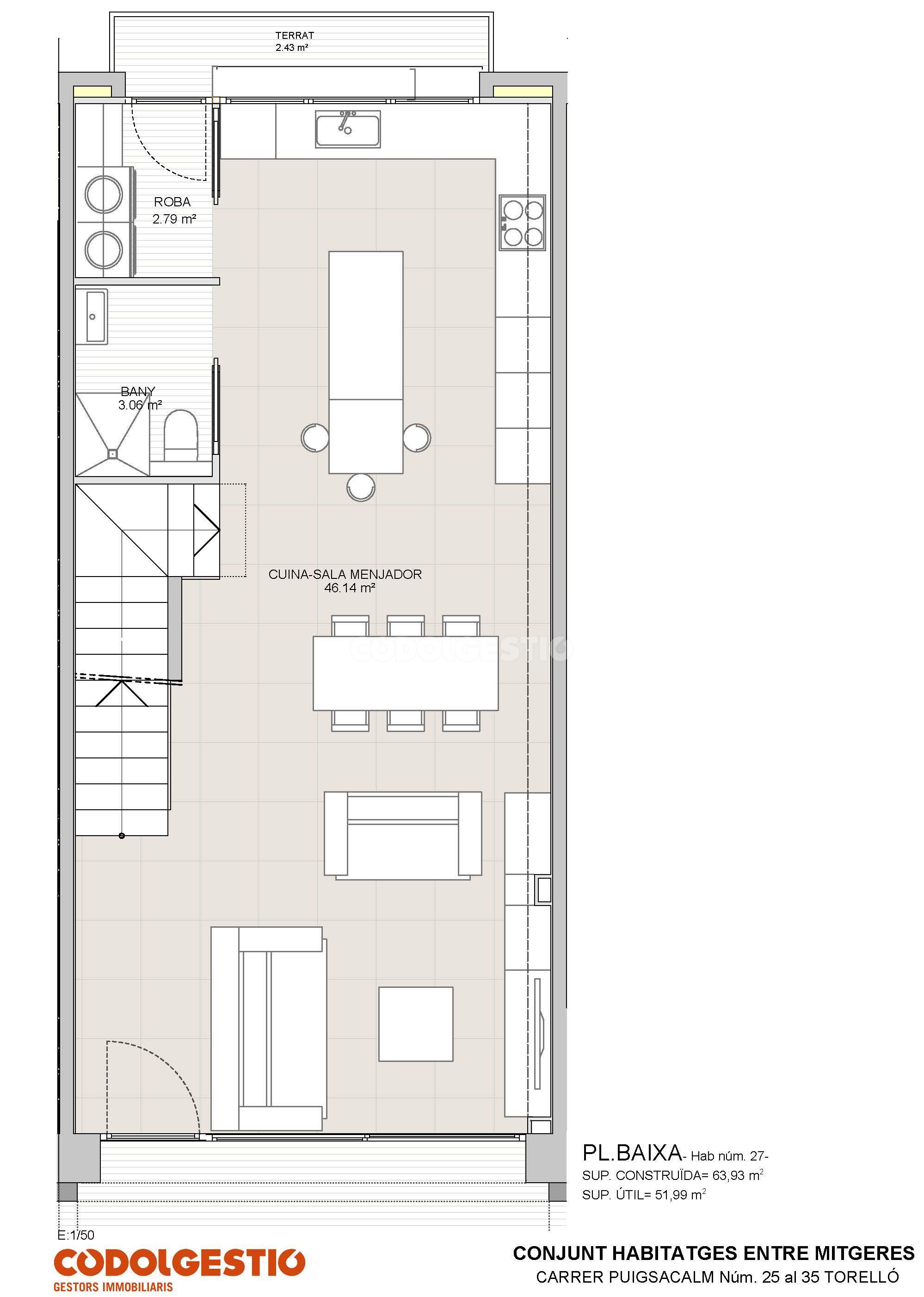
La planta principal ubicada a la planta baixa té la cuina sala-menjador oberta i espaiosa que convida a sortir al jardí, on podràs gaudir de la tranquil·litat i la privacitat que ofereix aquest espai a l'aire lliure. Té una cambra higiènica per la teva practicitat i un bany complet amb plat de dutxa.
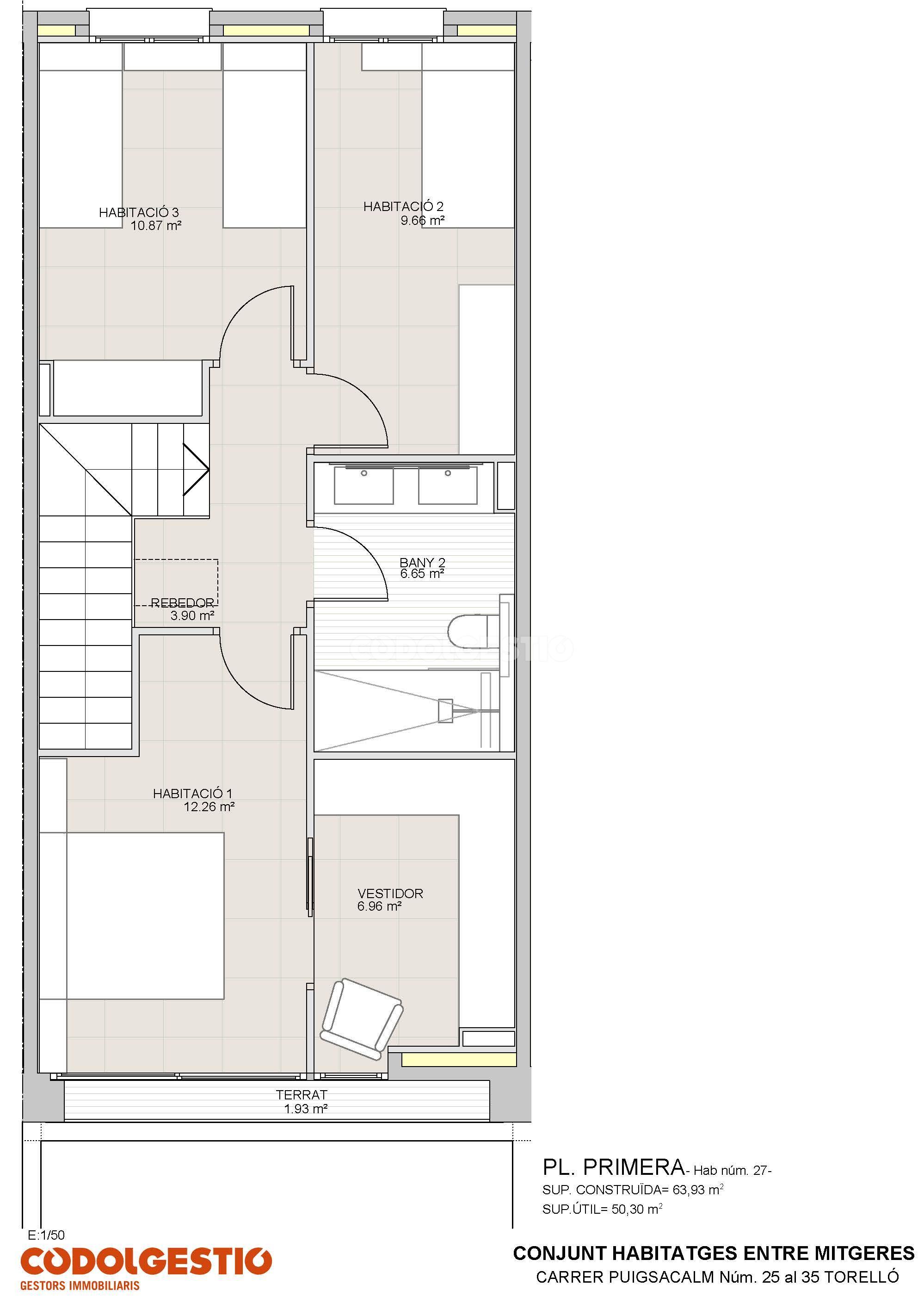
La planta Segona té un bany complet elegant i modern, tres habitacions dobles, una d’elles amb vestidor.
El garatge és ampli per a tres cotxes i aparcar amb comoditat.
Aquests habitatges compleixen la certificació energètica A, equipats amb aerotèrmia i terra radiant, aquest projecte està dissenyat per a proporcionar un entorn de vida que maximitza el benestar i el confort dels seus residents. La distribució dels espais optimitza la llum natural i crea espais amplis, funcionals.
Informa't sense compromís
Informació addicional: C/ Puigsacalm. Obra nova en construcció. X2024008680 (Caducitat: desembre 2027). Superfície construïda 193,86 m², superfície útil 155,70 m². IVA: Tipus vigent. AJD: Tipus vigent. Despeses notarials i registrals segons aranzel. Nº de Registre AICAT 3865. Nº API A10233. NO GRAN TENIDOR.
La planta principal ubicada a la planta baixa té la cuina sala-menjador oberta i espaiosa que convida a sortir al jardí, on podràs gaudir de la tranquil·litat i la privacitat que ofereix aquest espai a l'aire lliure. Té una cambra higiènica per la teva practicitat i un bany complet amb plat de dutxa.
La planta Segona té un bany complet elegant i modern, tres habitacions dobles, una d’elles amb vestidor.
El garatge és ampli per a tres cotxes i aparcar amb comoditat.
Aquests habitatges compleixen la certificació energètica A, equipats amb aerotèrmia i terra radiant, aquest projecte està dissenyat per a proporcionar un entorn de vida que maximitza el benestar i el confort dels seus residents. La distribució dels espais optimitza la llum natural i crea espais amplis, funcionals.
Informa't sense compromís
Informació addicional: C/ Puigsacalm. Obra nova en construcció. X2024008680 (Caducitat: desembre 2027). Superfície construïda 193,86 m², superfície útil 155,70 m². IVA: Tipus vigent. AJD: Tipus vigent. Despeses notarials i registrals segons aranzel. Nº de Registre AICAT 3865. Nº API A10233. NO GRAN TENIDOR.
Detalls de l'immoble
Tipus: Casa
Règim: Venda
Estat: Nou
Preu:
375.000€
Adreça: Carrer Puigsacalm - Torelló
Superfície: 199m2
Habitacions: 3
Banys: 2
*La quota té caràcter retroactiu, publicitari i orientatiu, no contractual. Concessió condicionada als requisits de l'entitat financera al sol·licitant.
Certificació energètica
| Consum energètic | Emissions CO2 |
| A | ||
| B | ||
| C | ||
| D | ||
| E | ||
| F | ||
| G |
Sol·licita més informació de l’immoble
Per a més informació pots trucar-nos al següent número de telèfon 93 859 02 00 o bé posar-te en contacte a través del següent formulari: